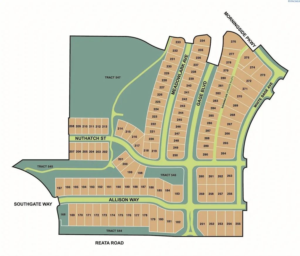
About Nka Savanna Ave Lot 278
MLS# 283740 his is a presale. Final Plat expected early October 2025. Closing dates within 45 days of final plat. Welcome to this delightful property perfectly situated with the front of the home facing Gage Boulevard, offering great curb appeal and convenient access. The rear of the property opens to Savanna Avenue, a charming private road maintained by the HOA—providing a quiet, low-traffic entry point with added privacy. Ideal for those who appreciate a peaceful setting without sacrificing accessibility, this home combines comfort, charm, and practicality in one unique location. This rare single-family residential lot is nestled within a master-planned community designed to offer the perfect balance of convenience and tranquility. With its prime location, this land is an ideal spot for building your dream home amidst a vibrant and walkable neighborhood. Imagine living steps away from paved walking trails that connect you to scenic community parks, where relaxation and outdoor activities await. The proximity to schools ensures an easy daily commute for families, while a newly constructed fire station adds an extra layer of safety and peace of mind. This lot represents more than just land; it offers the promise of a thriving community experience for families of all ages. Don’t miss the chance to create a home that’s part of a sought-after neighborhood, rich with amenities and designed for the best quality of life. Act now to secure this exceptional property and start planning the home of your dreams!
Features of Nka Savanna Ave Lot 278
| MLS® # | 283740 |
|---|---|
| Price | $125,000 |
| Acres | 0.18 |
| Type | LAND |
| Sub-Type | Residential |
| Status | Active |
Community Information
| Address | Nka Savanna Ave Lot 278 |
|---|---|
| Area | Benton |
| Subdivision | SOUTH ORCHARD PHASE 1 |
| City | Richland |
| State | WA |
| Zip Code | 99352 |
Amenities
| Utilities | Electric to Property Line, Gas to Property Line |
|---|---|
| Is Waterfront | No |
Additional Information
| Zoning | Residential |
|---|---|
| Foreclosure | No |
| Short Sale | No |
| RE / Bank Owned | No |
Listing Details
| Office | RE/MAX, The Collective |
|---|
